Förderung der Holzbau-Ausbildung in UK
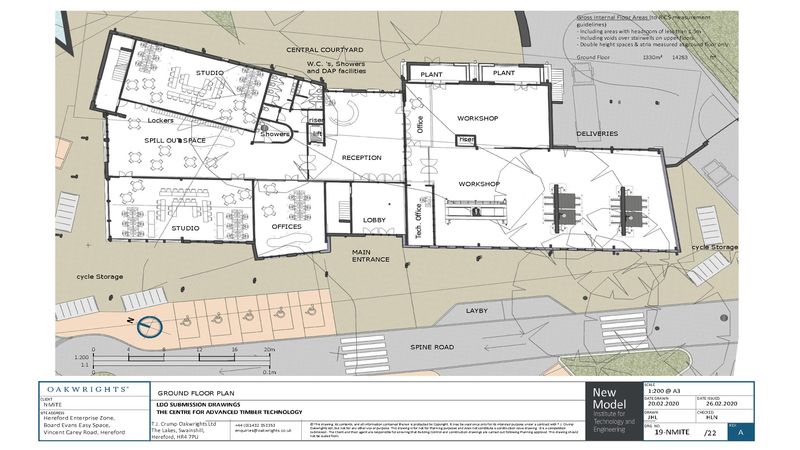
Das New Model Institute for Technology and Engineering (NMITE) im englischen Hereford macht nun den nächsten großen Schritt zur Konstruktion des Centre for Advanced Timber Technology (CATT). Die ersten Ideen und Pläne wurden von unserem langjährigen Kunden Oakwrights erstellt. Der Bau wird in Glulam (Brettschichtholz) und CLT (Brettsperrholz) ausgeführt. Das Institut realisiert damit ein Projekt, das als Showcase die Nutzung von Holz als Baumaterial in Design und Produktion zeigt. Gleichzeitig dient es den an der Hochschule zukünftig studierenden Holzbau-Ingenieure als Studienobjekt.
Dietrich’s ist Partner des NMITE für die Ausbildung in 3D CAD/CAM Holzbau Software. Wir sind stolz darauf, die Initiative von NMITE als Sponsor mit unserem Knowhow zu begleiten.
Den Anwenderbericht zu NMITE – New Model Institute for Technology and Engineering finden Sie hier
